
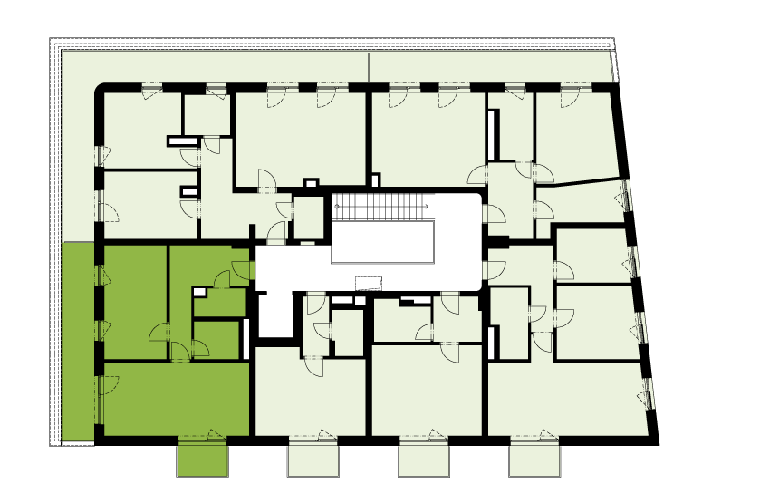
| 01 | chodba | 9,9 m2 |
| 02 | obývací pokoj + kk | 21,9 m2 |
| 03 | ložnice | 14,7 m2 |
| 04 | koupelna | 3,4 m2 |
| 05 | WC | 2,7 m2 |
| Užitná plocha | 52,5 m2 | |
| Podlahová plocha | 57,3 m2 | |
| 06 | terasa | 13,6 m2 |
| 07 | balkón | 3,1 m2 |
Poznámka: Plochy jednotlivých místností jsou pouze orientační. Vyobrazené zařízení v plánech bytů (nábytek, kuch. linka, el. spotřebiče atd.) není součástí dodávky. Přesné parametry jsou specifkovány ve smlouvě. Developer si vyhrazuje právo na drobné úpravy.
* Podlahová plocha bytu dle nařízení vlády č. 366/2013 Sb. vč. svislých konstrukcí a jader.
Ceník
| Jednotka | Dispozice | Dům | Podlahová plocha 1)PP 1) | Terasa | Zahrada | Parkovací stání | Cena vč. DPH | Status | |
|---|---|---|---|---|---|---|---|---|---|
| Řadové rodinné domy R | |||||||||
| ŘRD1 | 4+kk | R | 129,6 m2 | 13,8 m2 | 142,6 m2 | 2 | rezervace | ||
| ŘRD2 | 4+kk | R | 129,6 m2 | 14,8 m2 | 49,0 m2 | 2 | rezervace | ||
| ŘRD3 | 4+kk | R | 129,6 m2 | 14,8 m2 | 49,0 m2 | 2 | 15 998 570 Kč | volný | |
| ŘRD4 | 4+kk | R | 129,6 m2 | 14,8 m2 | 49,0 m2 | 1 | 15 740 508 Kč | volný | |
| ŘRD5 | 4+kk | R | 129,6 m2 | 14,8 m2 | 49,0 m2 | 1 | prodáno | ||
| ŘRD6 | 4+kk | R | 129,6 m2 | 13,8 m2 | 221,3 m2 | 2 | prodáno | ||
Cena bytové jednotky je uvedena vč. DPH.
V ceně bytu není zahrnuta uzavřená sklepní kóje o rozloze 3,1 – 5,6 m2 v ceně od 95 tis. Kč do 172 tis. Kč vč. DPH.
* P = garážové parkovací stání v hodnotě 390 tis. Kč vč. DPH (není zahrnuto v ceně bytu).
* PS = venkovní parkovací stání v hodnotě 190 tis. Kč vč. DPH (není zahrnuto v ceně bytu).
1) Podlahová plocha bytu dle nařízení vlády č. 366/2013 Sb. vč. svislých konstrukcí.
V JEDNÁNÍ – jedná se o nezávaznou předrezervaci. Pokud byste o tuto nemovitost měli zájem, kontaktujte nás pro více informací o detailech a dostupnosti!
Developer si vyhrazuje právo na změnu.
Nová kapitola bydlení. Stále Evergreen.
Pražské Ďáblice jsou oblíbenou rezidenční čtvrtí s bohatou historií nově doplněnou o zahradní čtvrť Evergreen. Tato lokalita svým rezidentům nabízí nejen příjemné bydlení, ale i plnou občanskou vybavenost, blízkost přírody i centra města a spoustu uklidňující zeleně v blízkém okolí.
Nyní přichází Evergreen+. Nová etapa přináší další rozvoj území a soustředí se na to, co dnes určuje kvalitu bydlení. Díky nízkoenergetickému řešení a moderním technologiím nabízí efektivní provoz a důraz na komfort každodenního života. Pojďte dál…
Evergreen+ nabízí převážně byty v dispozicích 1+kk a 2+kk, ideální pro jednotlivce i páry, kteří hledají efektivně řešený prostor bez zbytečných kompromisů. V nejvyšších patrech jsou dispozice doplněny o prostornější 3+kk.
Balkon nebo terasa jsou součástí většiny bytů. I menší dispozice tak nabízejí kousek soukromí venku - místo pro klidné ráno, letní večer nebo pěstování bylinek. Parkování je řešeno venkovními stáními a krytými místy v podzemních garážích.
Součástí nabídky je také 6 třípodlažních řadových rodinných domů o dispozici 4+kk + pracovna. Každý dům nabízí 129,6 m² obytné plochy, zahradu a dvě terasy. Promyšlené uspořádání zahrnuje tři koupelny, komory i samostatnou technickou místnost. Parkování je řešeno jedním až dvěma venkovními stáními přímo u domu.
Standard Evergreenu+ spojuje nízkoenergetické řešení s moderními technologiemi a kvalitní standardní vybavení. Podlahové vytápění ve všech obytných místnostech, koupelnách i WC (u bytových domů s funkcí pasívního dochlazování v letním období), řízené větrání s rekuperací a systémy tepelných čerpadel tvoří základ každodenního komfortu: od příjemné teploty pod nohama až po stabilní a zdravé vnitřní klima.
Stejnou pozornost projekt věnuje i samotnému vybavení bytů a rodinných domů. Výběr dekorů podlah a velkoformátových dlažeb, rektifikované obklady a kvalitní sanita od prověřených výrobců vytvářejí nadčasový základ pro individuální zařízení interiéru. Datové rozvody ve všech obytných místnostech odpovídají současným nárokům na práci i každodenní fungování domácnosti.
Moderní technologie. Kvalitní standardní vybavení. Skutečný komfort.
Nízkoenergetické bydlení v Evergreen+ je navrženo tak, aby příjemná teplota, čerstvý vzduch i úsporný provoz byly samozřejmou součástí každého dne. Moderní technologie zde představují jednu z klíčových hodnot projektu a a tvoří pevný základ celkového komfortu.
Podlahové vytápění (u bytových domů s funkcí pasívního dochlazování v letním období) ve všech obytných místnostech, koupelnách i WC přináší rovnoměrné sálavé teplo bez radiátorů a umožňuje čisté řešení interiéru. Řízené větrání s rekuperací zajišťuje stálý přívod čerstvého vzduchu a zároveň omezuje tepelné ztráty, takže klima v interiéru zůstává vyvážené po celý rok.
Zdrojem energie jsou tepelná čerpadla odpovídající typu stavby; u bytových domů systém země–voda s hlubinným vrtem, u řadových domů systém vzduch–voda s venkovní jednotkou, která efektivně a šetrně využívá energii okolního prostředí.
Izolační trojskla a příprava na venkovní žaluzie pomáhají regulovat světlo i teplotu v interiéru a podporují celkovou pohodu bydlení.
Splátkový kalendář v projektu Evergreen+ je nastaven jednoduše a přehledně ve třech základních krocích.
Prvním krokem je podpis rezervační smlouvy a úhrada rezervační zálohy ve výši 200 000 až 300 000 Kč dle velikosti jednotky, na jejímž základě je vybraný byt rezervován. Následuje podpis Smlouvy o budoucí kupní smlouvě, při kterém kupující hradí 15 % z kupní ceny nemovitosti včetně DPH. Zaplacená rezervační záloha se do této částky započítává. Zbývajících 85 % kupní ceny kupující uhradí až po kolaudaci stavby.
Pokud plánujete hradit větší část kupní ceny z vlastních zdrojů, rádi vám připravíme individuální nabídku v rámci zrychleného splátkového kalendáře.
Financování je možné i prostřednictvím hypotečního úvěru. Rádi vám pomůžeme s výběrem vhodného řešení a doporučíme ověřené hypoteční specialisty.
Ďáblice patří k částem Prahy 8, které si zachovaly své měřítko i charakter. Najdete tu klidné rezidenční ulice, Ďáblický háj s výhledy na Prahu, cyklostezky i místa pro každodenní procházku. V docházkové vzdálenosti jsou školy, školky i běžné služby, které dělají život jednodušší bez nutnosti jezdit přes půl města.
Stanice metra C i napojení na hlavní tahy drží centrum Prahy na dosah, aniž by zasahovalo do klidného rytmu čtvrti. Ďáblice tak spojují dostupnost metropole s prostředím, kde má bydlení stále lidské měřítko a přirozený klid.

